Jūrmala, Melluži, Mellužu prospekts

Jūrmala, Melluži, Mellužu prospekts
Jūrmala, Melluži, Mellužu prospekts

Investment Property in Jūrmala with a Stable Income Stream

Price

1 200 000 €

Area

1 029 m2

Land plot

1 296 m2

Floor

2

Amenities

  • Alarm
  • Electricity
  • Water
  • Video cameras
  • Closed courtyard

Description

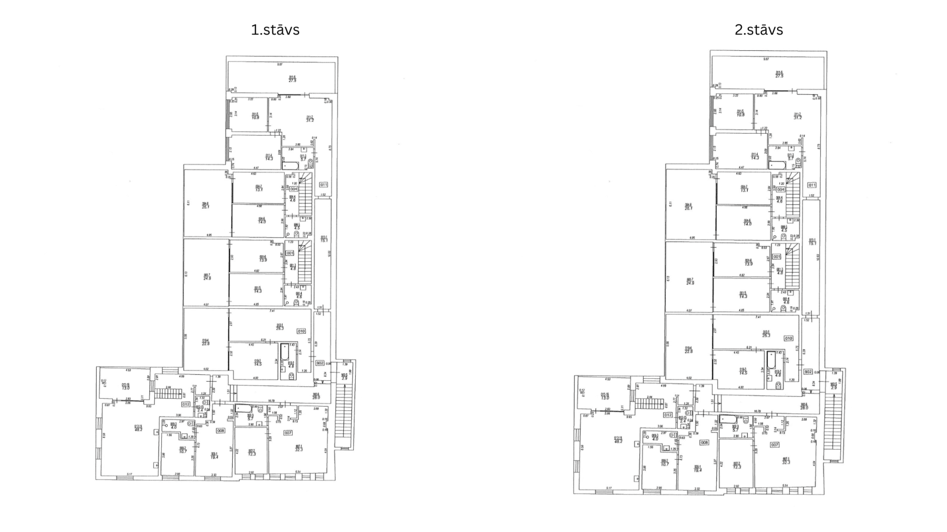
For sale: a two-story hotel building at Mellužu prospekts 9, Jūrmala.
The property consists of two buildings with a total area of 955.4 m² and 74 m², located on a 1,296 m² land plot.

The building is in good condition and fully adapted for commercial use. All utilities are available: gas heating with an individual boiler, electricity, central water supply and sewage, as well as security and video surveillance systems. The fenced, landscaped territory with a paved courtyard ensures convenient access and a well-maintained environment.

Layout and usage possibilities:
1st floor: premises for catering services, currently hosting a French boulangerie and a French cuisine restaurant;
2nd floor: beauty salon and office spaces;
Courtyard building: equipped premises for a kindergarten.

The property is located just a five-minute walk from the sea, opposite Melluži Open-Air Stage and park, ensuring high visibility and visitor flow. A stable source of income and broad development opportunities make this building an excellent investment for the future.

Broker image

Let's get in touch