Jauns 3 istabu dzīvoklis Rīga centrā
Cena
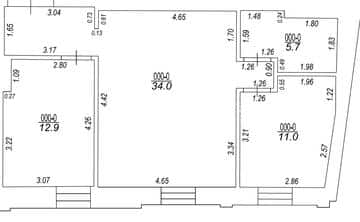
241 680 €Platība
64 m2Stāvs
5/5Guļamistabas
2Vannas istabas
1Apraksts
Trīs istabu dzīvoklis mūsdienīgā projektā vienā no pieprasītākajām vietām Rīga centrā.
Piedāvājam dzīvokli ar izcilu atrašanās vietu un augstu investīciju potenciālu – ideālu izvēli gan dzīvošanai, gan drošam ieguldījumam.
Atrašanās vieta, kas pārdod pati sevi
Apkārtne ar lieliski attīstītu infrastruktūru – turpat aiz stūra restorāni, kafejnīcas, veikali, konditorejas, aptiekas, bērnudārzi un skolas. Viss ikdienai nepieciešamais atrodas dažu minūšu gājiena attālumā. Tuvumā pieejamas arī atpūtas un sabiedriskās dzīves vietas, nodrošinot dinamisku un ērtu pilsētas dzīvi.
Projekta koncepcija
Projekts sastāv no divām ēkām:
reprezentablas fasādes mājas ar liftu,
mājīgas pagalma mājas mierīgākai dzīves atmosfērai.
Šāds risinājums nodrošina līdzsvaru starp aktīvu pilsētas ritmu un privātumu.
Dzīvokļi ir sadalīti kā atsevišķi dzīvokļu īpašumi, zeme — īpašumā.
Atsevišķos dzīvokļos pircējiem ir iespēja veikt iekšdarbus atbilstoši savam individuālajam stilam, pielāgojot mājokli savām vēlmēm un vajadzībām.
Ēkā veiktie atjaunošanas darbi:
✔ Jauns jumts
✔ Nomainīti stāvvadi (aukstais, karstais ūdens, kanalizācija)
✔ Atjaunota apkures sistēma, uzstādīti individuālie siltuma skaitītāji
✔ Atjaunota fasāde
✔ Jaunas ieejas durvis
✔ Jaunas dzīvokļu durvis
✔ Domofons
✔ Jauns lifts fasādes ēkā
✔ Labiekārtots pagalms
✔ Optiskā interneta pieslēgums no Tet un Baltcom
Šis projekts ir lieliska izvēle tiem, kuri novērtē kvalitāti, atrašanās vietu un stabilu īpašuma vērtību nākotnē.



























